CAMPO DI MARTE - ATTICO CON TERRAZZA ABITABILE

Descrizione
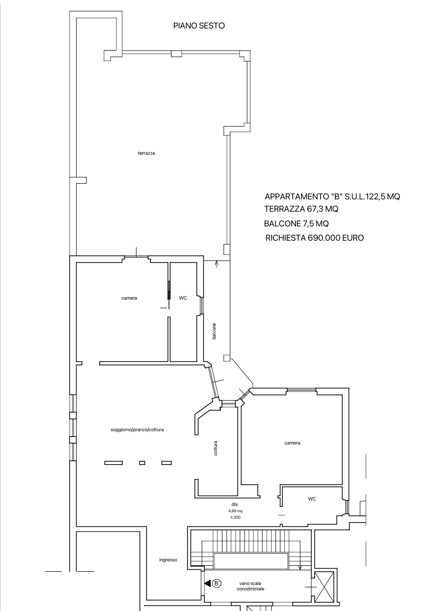
V.LE FANTI - bel palazzo, piano 5° con ascensore, ATTICO CON TERRAZZA ABITABILE composto da ingresso, SALONE TRIPLO CON CUCINA A VISTA, due camere MATRIMONIALI, oltre balcone e TERRAZZA DI MQ 65CC PANORAMICA. Appartamento in fase di completa ristrutturazione. Possibilità scelta finiture. Consegna maggio 2026. Termocentrale. Predisposizione clima. Euro 690.000 Attestato di prestazione energetica classe G, indice di consumo 175 kwh/mq annuo. LOFT & CO. Studio Immobiliare - Sede: P.zza dell'indipendenza n.21 Firenze - ufficio secondario: Via Corridoni 60/D - Altre proposte su https://www.immobiliare.it/agenzie-immobiliari/79554/loft-co-firenze/ web: https://www.lofteco.it - mail: lofteco@gmail.com - contatti: Iacopo 3489088718 - Niccolò 3401665977 - Gianni 3312299044 SOCIAL: gplus: https://plus.google.com/u/159/+LoftecoIt/posts twitter: https://twitter.com/lofteco facebook: https://www.facebook.com/LOFT-CO-studio-Immobiliare-1389007241340797/
Caratteristiche & Servizi
Posizione
Posizione
Caricamento mappa...
Simulatore Finanziario & ROI
Parametri Mutuo
Proiezioni Investimento
Modifica questo valore in base al mercato affitti locale.
* Il calcolo è una simulazione. Non include costi straordinari o variazioni tassi.
Contattaci Ora
Il tuo agente di riferimento
Iacopo Guagni
Agente Immobiliare
Disponibile dalle 9:00 alle 19:00